Merzenich-Immobilien

Objektdetails: Leverkusen - Opladen - Wohnung
Leverkusen-Opladen: Helle 2-Zimmerwohnung mit eigenem Gartenparadies


Objektdaten

Objektnummer

132-12135

   
Ort Leverkusen - Opladen Stadtteil Leverkusen - Opladen
Strasse
Objektart Eigentumswohnung Anzahl Zimmer 2.00
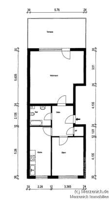
Fläche 78.91 m² Frei ab ab Mai 2026 möglich
Kaufpreis 275000.00 Euro Provision 3,57% des Kaufpreises, inkl. 19% MwSt.
Nebenkosten Garage Tiefgarage
Einbauküche  vorhanden    

Objektbeschreibung

Großzügige 2-Zimmerwohnung in ruhiger Grünlage mit traumhaftem Garten, Terrasse und viel Wohnkomfort.

Lage

Stadtteil: Leverkusen - Opladen

Das Mittelzentrum nordöstlich von Köln zählt zu den kleineren Großstädten des Landes und hat ungefähr 162.000 Einwohner, es gehört zur Metropolregion Rhein-Ruhr. Bekanntheit erlangte Leverkusen vor allem durch den Konzern Bayer AG und den Fußball-Bundesligisten Bayer 04 Leverkusen. In Leverkusen gibt es verschiedene Grünflächen und Parks. Der Wildpark Reuschenberg beherbergt auf 34.000 Quadratmetern viele einheimische Tierarten in einem größeren Waldgebiet. Im Leverkusener Stadtgebiet kreuzen sich die Autobahnen 1 (Saarbrücken–Köln–Dortmund–Hamburg–Heiligenhafen) und 3 (Passau–Frankfurt–Köln–Oberhausen–Emmerich) am Autobahnkreuz Leverkusen. Die A 59 führt im Westen des Stadtgebiets in Richtung Norden nach Düsseldorf. Ferner verlaufen die Bundesstraßen 8 und 51 sowie die ehemalige B 232 durch das Stadtgebiet.

Ausstattung / Energieausweis

Es liegt ein Energieverbrauchsausweis vor. Dieser ist gültig bis 19.8.2028. Endenergieverbrauch beträgt 115.70 kwh/(m²*a). Wesentlicher Energieträger der Heizung ist Gas. Das Baujahr des Objekts lt. Energieausweis ist 1981. Die Energieeffizienzklasse ist D. Haben Sie weitere Fragen? So rufen Sie uns gerne umgehend an. Wir sind auch samstags erreichbar. Telefon: 0221-202050 Oder senden Sie uns direkt Ihre Anfrage, wie auch Ihren Terminwunsch, gerne auch über unsere Internetseite www.merzenich.de, zu. Die Angaben zu diesem Objekt wurden uns vom Eigentümer übermittelt. Trotz aller Sorgfalt können wir für Richtigkeit und Vollständigkeit keine Haftung übernehmen. ZIEHEN SIE DEN VERKAUF ODER DIE VERMIETUNG IHRER IMMOBILIE IN ERWÄGUNG? DANN SIND WIR DIE RICHTIGEN ANSPRECHPARTNER, DENN "IHRE IMMOBILIEN SIND UNSERE LEIDENSCHAFT!" Was passiert mit Ihren empfindlichen Daten? http://www.merzenich.de/datenschutz.php

  • Immobilienmakler Köln
    Kontakt

    Merzenich Immobilien GmbH
    Hinter den Wiesen 20
    51105 Köln


    Telefon-Hotline (auch Samstags):
    0221 / 20 20 50

Bilder (zum Vergrößern anklicken)



Die Angaben zu diesem Objekt wurden uns vom Vermieter übermittelt.
Trotz aller Sorgfalt können wir für Richtigkeit und Vollständigkeit keine Haftung übernehmen.

 

weitere Immobilienangebote für Wohnungen / Häuser sowie möblierte Appartments und Zeitwohnen in Köln und Umgebung finden Sie bei Ihrem Immobilienmakler Merzenich Immobilien